159 041 ₽/м²
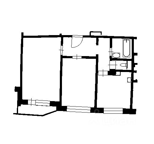
Новый монолитный жилой дом 2026 года постройки. Продается просторная 1-комнатная квартира, без внутренней отделки. Удобная, комфортная планировка: кухня -11,8 м2 с выходом на застекленную лоджию, жилая комната - 15,2 м2., большая ванная - 6,5 м2 (при необходимости можно разъединить на ванную и санузел), просторный холл - 13,1 м2., с очень удобной нишей для встроенного шкафа. Застекленная лоджия с панорамными окнами, выходящими во двор. Благоустроенная придомовая территория с детскими и спортивными площадками, подземный паркинг, видеонаблюдение. Собственность оформлена, ключи на руках, 1 взрослый собственник, полная стоимость в ДКП, никаких ограничений, обременений, залогов, подходит под ипотеку любого банка. Развитая городская инфраструктура. Есть все необходимое для жизни: Детские образовательные и медицинские учреждения, сетевые супермаркеты, службы доставки (Оzоn, Wildbеrriеs, ЯндексМаркет), пекарня со свежим хлебом, фитнес-клуб с бассейном, стадион, экстрим-парк, отделения банков и многое другое. Экологичный зеленый район, в 2-ух минутах пешком расположен "Томилинский лесопарк" с прогулочными зонами, местами отдыха, лыжными трассами и велодорожками. Также в пешей доступности расположены Дзержинский и Люберецкий карьеры с пляжными зонами.









































































